| Fireplaces |


| Photo of wall where custom maple fireplace surround will be installed. |


| Above: Google Sketchup model of fireplace, mantel and surround. Compare with the actual photo above. |
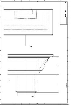
| Below: Drawings to help the customer visualize the final product. |
| Above: Parts are dry-fit in wood shop. |
| Above: After dry-fitting, parts are disassembled and painted to match customer's existing trim. |

| Actual photo of finished mantel. |



| In the shop the parts are machined and assembled. |
| Parts are then painted to match existing house trim color. |







| Walnut Fire Place Built 12/15/2019 |
